60 м2, дом +1 гектар, участок
Тульская область, Щекинский район, Лукино д., Магистральная ул., д.18
2 099 000 ₽
34 983 ₽/м2
- ID 74323105
- 60 кв.м. 1 гектар
- 0/1 этаж
-
2 099 000 ₽34 983 ₽/м2Рассчитать ипотеку
Об объекте
Арт. 74323105
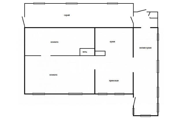
Предлагается к продаже жилой дом площадью 60 квадратных метров на участке 20 соток земли ИЖС. Возможно приобретение ещё 80 соток. Все коммуникации, земля в собственности, рядом остановка общественного транспорта, асфальтированная дорога, трасса М2.
На территории посажены плодовые и кустарниковые растения, находится большой погреб, сарай, есть возможность разделить участок.
Можно рассмотреть как коммерческий проект.
Предлагается к продаже жилой дом площадью 60 квадратных метров на участке 20 соток земли ИЖС. Возможно приобретение ещё 80 соток. Все коммуникации, земля в собственности, рядом остановка общественного транспорта, асфальтированная дорога, трасса М2.
На территории посажены плодовые и кустарниковые растения, находится большой погреб, сарай, есть возможность разделить участок.
Можно рассмотреть как коммерческий проект.
Характеристики
- Количество комнат4
- Реконструкциякосметический
- Площадь6 кв.м.
- ЭлектричествоДа
- ГазДа
- ВодоснабжениеДа
- ВодаВодопровод
- ОтоплениеДа
- Тип отопленияЦентральное
- КанализацияДа
- Тип канализацииЛокальная
- Тип строенияКирпичный
- ДорогаАсфальт
- СаунаНет
- БассейнНет
- МебельНет
- Жилое пространство52 кв.м.
- Новый домНет
- Этажей в доме1
- Этаж0
- ИпотекаДа
Общие
Коммуникации
Прочее

Кутасин Юрий
Специалист по недвижимости
Расположение
Тульская область, Щекинский район, Лукино д., Магистральная ул., д.18
Выгодное предложение! Забронируйте сейчас!

Юрий Кутасин
Специалист по недвижимости
Контакты
-
Почта:yu.m.kutasin@rielt-everest.ru
-
Адрес:г. Тула, ул. Кирова, 143
-
Телефон:+7 (960) 601-88-64
-
Горячая линия:+7 (800) 444-10-71