120 м2, 5-комнатная квартира
Тульская область, Тула г., Советский, Гоголевская ул., д.76
10 999 999 ₽
91 666 ₽/м2
- ID 133222207
- 120 кв.м.
- 1/5 этаж
-
10 999 999 ₽91 666 ₽/м2Рассчитать ипотеку
Об объекте
Арт. 133222207
Просторная квартира на 1 этаже с отдельным входом, стоит рассмотреть коммерческий потенциал этой квартиры.
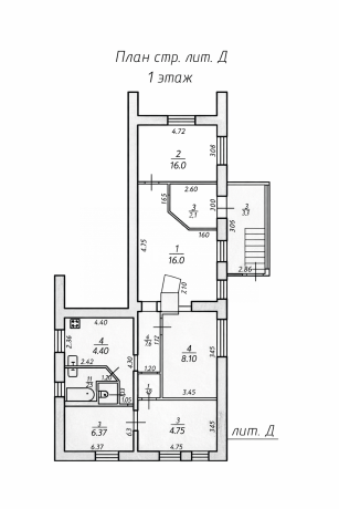
Общая площадь - 120 м². Пять смежно-изолированных помещений позволяют гибко использовать пространство под разные задачи — от комфортного проживания до более практичных сценариев.
Ключевая особенность - собственный выход на улицу с крыльцом, а также дополнительный вход из подъезда( аварийный выход).
Высота потолков 3 метра и окна на две стороны (улица и двор) дают хорошее ощущение объема и света.
Конструктив - железобетонные перекрытия.
Все коммуникации новые, это ускоряет возможность приступить к ремонту.
Отдельный плюс — собственный подвал прямо из квартиры.
*Часть фотографий - это ИИ-визуализации. Они показывают, как квартира может выглядеть после ремонта. Фактическое состояние - как указано в описании.
По всем вопросам просьба обращаться по телефону, указанному в объявлении.
С уважением,
Князев Алексей
*** По данному лоту возможно получить страховку от утраты права собственности. В случае утраты права Компания компенсирует 100 % стоимости приобретённой недвижимости.
Стоимость страховки составляет 100 000 рублей сроком на 3 года. Предложение не является офертой. Информацию можно получить по телефону, указанному в объявлении.
Просторная квартира на 1 этаже с отдельным входом, стоит рассмотреть коммерческий потенциал этой квартиры.
Общая площадь - 120 м². Пять смежно-изолированных помещений позволяют гибко использовать пространство под разные задачи — от комфортного проживания до более практичных сценариев.
Ключевая особенность - собственный выход на улицу с крыльцом, а также дополнительный вход из подъезда( аварийный выход).
Высота потолков 3 метра и окна на две стороны (улица и двор) дают хорошее ощущение объема и света.
Конструктив - железобетонные перекрытия.
Все коммуникации новые, это ускоряет возможность приступить к ремонту.
Отдельный плюс — собственный подвал прямо из квартиры.
*Часть фотографий - это ИИ-визуализации. Они показывают, как квартира может выглядеть после ремонта. Фактическое состояние - как указано в описании.
По всем вопросам просьба обращаться по телефону, указанному в объявлении.
С уважением,
Князев Алексей
*** По данному лоту возможно получить страховку от утраты права собственности. В случае утраты права Компания компенсирует 100 % стоимости приобретённой недвижимости.
Стоимость страховки составляет 100 000 рублей сроком на 3 года. Предложение не является офертой. Информацию можно получить по телефону, указанному в объявлении.
Характеристики
- Количество комнат5
- Реконструкциятребует ремонта
- Площадь12 кв.м.
- Площадь комнат36.4 кв.м., 30.3 кв.м., 14.3 кв.м., 19 кв.м., 10.3 кв.м.
- Площадь кухни9 кв.м.
- ГазДа
- Тип отопленияЦентральное
- Тип строенияКирпичный
- Жилое пространство110.3 кв.м.
- Вид из окнаВо двор и на улицу
- ПланировкаСмежно-изолированная
- МебельНет
- Ванная комнатараздельный
- Высота потолков3
- Новый домНет
- Этажей в доме5
- Этаж1
- ИпотекаДа
Общие
Коммуникации
Прочее
Князев Алексей
Специалист по недвижимости
Расположение
Тульская область, Тула г., Советский, Гоголевская ул., д.76
Выгодное предложение! Забронируйте сейчас!
Алексей Князев
Специалист по недвижимости
Контакты
-
Почта:knyazev.0101@mail.ru
-
Адрес:город Тула, переулок Городской, дом 17а, этаж 2
-
Телефон:+7 (960) 610-88-04
-
Горячая линия:+7 (800) 444-10-71