141,2 м2, коммерческая недвижимость
Тульская область, Тула г., Привокзальный, Сурикова ул., д.7
6 350 000 ₽
44 971 ₽/м2
- ID 128602033
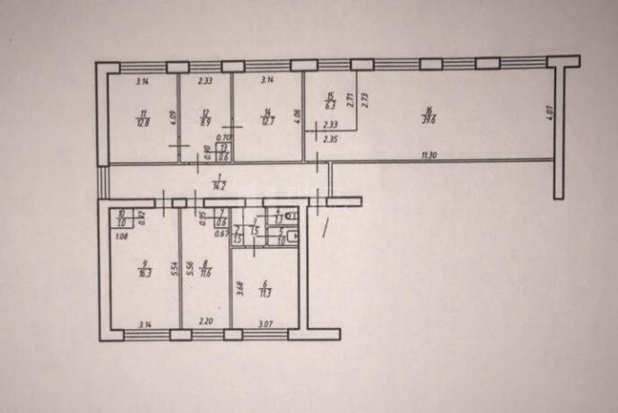
- 141.2 кв.м.
- 1/3 этаж
-
6 350 000 ₽44 971 ₽/м2Рассчитать ипотеку
Об объекте
Арт. 128602033
Продаётся нежилое помещение (141,2 м²) на первом этаже трёхэтажного, кирпичного дома. Состоит из восьми комнат. Одна мокрая точка, но есть возможность увеличить количество. Без ремонта. Вход со двора общий, но можно сделать отдельный с торца здания (предварительное согласие соседей получено). Окна пластиковые с внешними решётками.
В доме в 2022 году проведён капитальный ремонт. Отремонтированы фасад и крыша здания. В 2025 году заменены системы теплоснабжения, водоснабжения и водоотведения.
Во дворе достаточно места для парковки.
При желании можно перевести в жилое помещение.
По всем вопросам просьба обращаться по телефону, указанному в объявлении.
*** По данному лоту возможно получить страховку от утраты права собственности. В случае утраты права Компания компенсирует 100 % стоимости приобретённой недвижимости.
Стоимость страховки составляет 100 000 рублей сроком на 3 года. Предложение не является офертой. Информацию можно получить по телефону, указанному в объявлении.
С Уважением,
Юдаева Анна
Продаётся нежилое помещение (141,2 м²) на первом этаже трёхэтажного, кирпичного дома. Состоит из восьми комнат. Одна мокрая точка, но есть возможность увеличить количество. Без ремонта. Вход со двора общий, но можно сделать отдельный с торца здания (предварительное согласие соседей получено). Окна пластиковые с внешними решётками.
В доме в 2022 году проведён капитальный ремонт. Отремонтированы фасад и крыша здания. В 2025 году заменены системы теплоснабжения, водоснабжения и водоотведения.
Во дворе достаточно места для парковки.
При желании можно перевести в жилое помещение.
По всем вопросам просьба обращаться по телефону, указанному в объявлении.
*** По данному лоту возможно получить страховку от утраты права собственности. В случае утраты права Компания компенсирует 100 % стоимости приобретённой недвижимости.
Стоимость страховки составляет 100 000 рублей сроком на 3 года. Предложение не является офертой. Информацию можно получить по телефону, указанному в объявлении.
С Уважением,
Юдаева Анна
Характеристики
- Год постройки1961
- Реконструкциятребует ремонта
- Площадь141,2 кв.м.
- ГазНет
- Отоплениеда
- Тип отопленияЦентральное
- Тип канализацииЦентрализованная
- fund-change0
- Фонджилой
- Тип входаcommon
- ВходВход со двора (общий)
- Новый домНет
- Парковкада
- Этажей в доме3
- Этаж1
Общие
Коммуникации
Прочее
Юдаева Анна
Специалист по недвижимости
Расположение
Тульская область, Тула г., Привокзальный, Сурикова ул., д.7
Выгодное предложение! Забронируйте сейчас!
Анна Юдаева
Специалист по недвижимости
Контакты
-
Почта:annaydaeva81@gmail.com
-
Адрес:город Тула, переулок Городской, дом 17а, этаж 2
-
Телефон:+7 (920) 276-16-90
-
Горячая линия:+7 (800) 444-10-71